EINFAMILIENHAUS in oberwaldbach (VERKAUFT)
Wir bauen für Sie hochwertigen modernen & nachhaltigen Wohnraum in Form von Ein- & Mehrfamilienhäusern.

Massive Bauweise
Klassische Ziegelbauweise auf gedämmter Bodenplatte

Ökologischer KFW 55 EE Standard
Moderne Bauweise nach ENV KFW 55 EE Standard mit Luft-Wärme-Pumpe

Schlüsselfertig & bezugsfertig
Unsere Immobilien werden komplett schlüsselfertig mit Einbauküche übergeben.
modernes Einfamilienhaus
mit 127 m² Wohnfläche auf 408 m² Grund
mit 2 Stellplätzen
– VERKAUFT –
In Oberwaldbach entsteht eine modernes Einfamilienhaus
mit modernem Grundriss in KFW 55 EE Bauweise.
Objektbeschreibung
Treten Sie ein in ein wundervoll konzipiertes und großzügiges Einfamilienhaus mit besonderem Flair. Das energiesparende in Ziegelbauweise errichtete Haus hat einen Endenergiebedarf von 19,2 kWh sowie einen Primärenergiebedarf von 34,6 kWh und liegt damit im A+ Bereich. Beigefügt finden Sie Bilder des bereits fertig gestellten Musterhauses.
Sie erwartet ein liebevoll geplantes „Häuschen“, welches durch die zahlreichen und großen Fenster viel Tageslicht einfängt. Schmuckstück des tollen, ca. 127 m² großen Hauses ist das ca. 38 m² große Wohn- und Esszimmer mit offener Küche und Zugang zur sonnigen Terrasse sowie dem traumhaft großen begrünten Garten. So verbringen Sie die schönen und warmen Nachmittage auf dem ca. 18 m² großen Freisitz.
Das dem Haus zugeordnete Grundstück hat eine üppige Große von ca. 408 m²
Entsprechend heutigen Bedürfnissen wurde die Küche offen gehalten. Im Kaufpreis enthalten ist eine neue Einbauküche der Marke Schiller mit umfangreicher Ausstattung von Elektrogeräten. Im Erdgeschoss befindet sich ebenso der Heizungs-/Hauswirtschaftsraum mit Anschlussmöglichkeiten für Waschmaschine/Trockner sowie das vom Hausflur aus begehbare Gäste-WC.
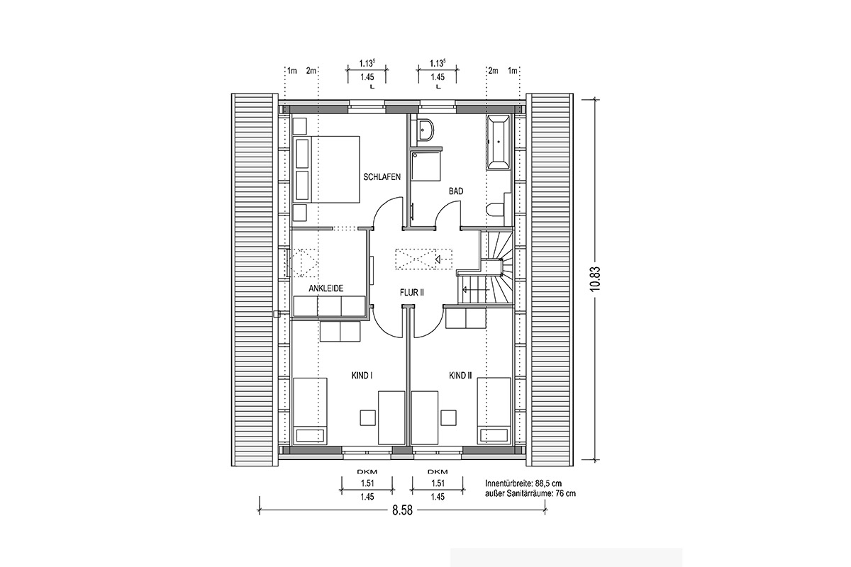
In das Obergeschoss kommen Sie über eine hochwertige Holztreppe. Die obere Etage verfügt über 3 sonnige Schlaf-/Kinderzimmer je ca. 12 m², 1 Ankleide ca. 4,5 m² sowie ein modernes Badezimmer.
Alternativ können Sie dadurch die Räumlichkeiten im OG ebenfalls als Ankleide oder Bürozimmer nutzen. Das Tageslicht-Bad ist überaus umfangreich ausgestattet. Unter anderem finden Sie vor: Badewanne samt Armaturen und Brause, begehbare bodenebene Dusche einschließlich hochwertiger Glas-Duschwand, Waschtisch mit Unterputz-Radio, wandhängende Toilette mit Druckspüler der Marke Grohe und absenkbarem Deckel sowie einem Badheizkörper.
Die Beheizung der Räumlichkeiten sowie die Warmwasseraufbereitung erfolgt über die neue Luft-Wärmepumpenheizung. Alle Zimmer mit Ausnahme des Hauswirtschaftsraums verfügen über eine Fußbodenheizung. Im Bad wurde zusätzlich ein Heizkörper verbaut. Sämtliche Fenster sind aus weißem Kunststoff und haben eine 3-fach-Verglasung. Sie lassen sich zusätzlich mit elektrischen Rollläden abdunkeln.
Umgebung & Infrastruktur
Oberwaldbach ist ein Ortsteil des Marktes Burtenbach im schwäbischen Landkreis Günzburg. Im Ort selbst leben ca. 500 Menschen.
In näherer Umgebung (Burtenbach, Thannhausen, Jettingen-Scheppach) sind zahlreiche Einkaufsmöglichkeiten wie Lebensmittelgeschäfte, Drogeriemärkte, Baumärkte etc. zu finden. Auch an Schulen, Kindergärten und medizinischer Versorgung stehen ihnen viele Möglichkeiten offen.
Umgeben von schöner Natur bieten sich zahlreiche Möglichkeiten zur Erholung und sportliche Aktivitäten wie Wandern, Radfahren, Golf, Indoor-Soccer und Wasserski.
Ausstattung
Die weitere Ausstattung des Hauses ist überaus umfangreich. Es bietet Ihnen beispielweise:
- zentrale Staubsauger-Anlage,
- traumhaft großer Garten,
- sonnige Terrasse,
- Einbauküche mit hochwertigen Elektrogeräten einschl. Spülmaschine, Kühlschrank, Backofen, Induktionskochfeld,
- großformatige Fliesen im Eingangsbereich,
- hochwertige Fußböden in Wohn-/Schlaf- und Kinderzimmer,
- umfangreiche Sanitärausstattung,
- Fußbodenheizung mit Raumregler,
- zahlreiche Steckdose sowie TV-Buchsen (SAT-Anlage),
- zwei Stellplätze
- Außenwände in Ziegel; Fassade gedämmt,
- und vielem mehr.
Insgesamt handelt es sich um eine sehr exklusive Immobilie, welche Ihnen durch einen licht-durchfluteten und geräumigen Zuschnitt in Verbindung mit den vielen Fenstern sowie der durchdachten Planung ein sehr angenehmes Wohngefühl vermittelt.
Einfamilienhaus
So erreichen Sie uns:
Telefon: 08204 / 298312
E-Mail: info@staudenbau.de
Adresse:
Oststraße 23, 86866 Mickhausen